Vehicle

2015 Surveyor® Surveyor 220RBS

Miles: 0 • VIN: 4X4TSVX26FL026048 • Stock #: 20V984B

Retail Price:

$0

Dealer Price:

$0

Vehicle Specifications

Body TypeRV
ConditionUsed
Exterior ColorGREEN
Length24'0"
Dry Weight4329 lbs
Weight ClassTowable
RV TypeTravel Trailer
Sleeping Capacity4
Slideouts1
Awnings1
Fresh Water Cap.46 gal
Grey Water Cap.40 gal
Black Water Cap.30 gal

Features

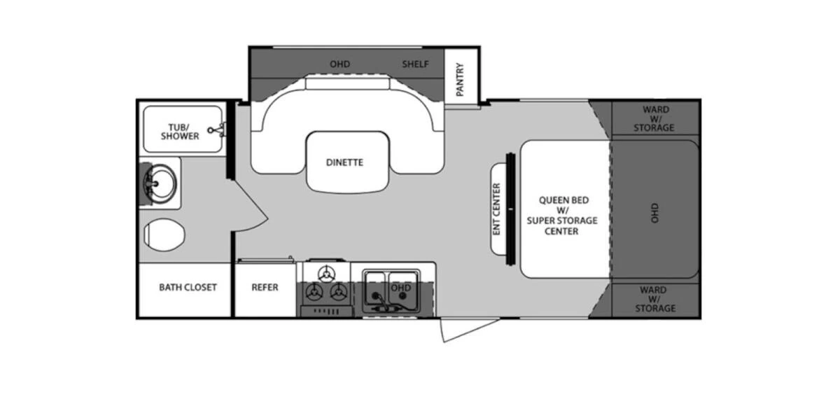
  • Rear Bath
  • Front Bed
  • Mid Kitchen

Hours

  • Sunday:Closed
  • Monday:9:00am - 7:00pm
  • Tuesday:9:00am - 7:00pm
  • Wednesday:9:00am - 7:00pm
  • Thursday:9:00am - 7:00pm
  • Friday:9:00am - 6:00pm
  • Saturday:9:00am - 5:00pm

Address and contact information

825 Addison Rd, Slinger, WI 53086

(262) 276-4541

Dealer Price

Call for Price
1/4

To inquire about this vehicle or the contents of this disclaimer, we encourage you to call Kunes Freedom RV at (262) 276-4541.

Price

Prices shown do not include taxes, license and title fees and a documentary service fee ($377.63 for Illinois) and tax, title, registration and service fees ($599 for Wisconsin), and these fees are due at signing. Please see dealer for complete detail on how a payment has been calculated. We work hard to make sure that the data listed here is correct. With that being said, some of the manufacturer rebates and incentives may be incorrect. Please confirm the details of this vehicle with Kunes RV. Kunes RV nor Motive are liable for data that is listed incorrectly. Additionally, the rebates, incentives, financing, discounts, and market adjustments are subject to expiration, residency restrictions, and more.

 

Consumers, please be aware that if you are purchasing a NEW Motorized OR Non-Motorized Recreational Vehicle from any Kunes RV dealership there will be a transportation fee and a dealer prep fee of $2,495.  These fees are for the transportation costs associated with picking the unit up from the Manufacturer and the Pre-Delivery Inspection which includes detailing/clean-up that is mandatory for each NEW RV unit.  If you are purchasing a USED Motorized OR Non-Motorized Recreational Vehicle from any Kunes RV dealership there may be charges. For Used units, Dealer Prep fees/Prep packages are optional and are only charged if selected by the customer.

Vehicle Information

While every effort has been made to ensure display of accurate data, including pricing data, the vehicle listings on this website may not reflect correct vehicle items or accessories as we get data from multiple sources. Always verify or physically inspect the vehicle to make sure the equipment and accessories listed are included. Accessories and color may vary. All Inventory listed is subject to prior sale. The vehicle photo displayed may be an example only. Vehicle Photos may not match exact vehicle?. Please confirm vehicle price with dealer. All materials on this site are presented to the user "as is" without warranty of any kind, either express or implied.

Vehicle Availability

Consumers, please be aware that the above advertised price assumes you are purchasing the vehicle from the Kunes Auto Group dealership where it is listed as being offered for sale. If the vehicle is transferred from one location to another, a transfer fee for this transportation of $300 will be added to the purchase transaction. If you would like to purchase such vehicle without paying a transfer fee, you can take delivery of the vehicle at the store it is listed as being sold from and avoid the additional transfer fee. 

EPA Disclaimer

Any MPG listed is based on model year EPA mileage ratings. Use for comparison purposes only. Your actual mileage will vary, depending on how you drive and maintain your vehicle, driving conditions, battery pack age/condition (hybrid only) and other factors. For additional information about EPA ratings, visit http://www.fueleconomy.gov/feg/label/learn-more-PHEV-label.shtml.

 

 

 

 

2015 Surveyor® Surveyor

220RBS

0

Call for Price

Confirm Availability

I have read and agree to the Privacy Policy